今天吉誠裝修公司要為大家介紹一套82平米三居室美式風格的裝修案例,小三室的戶型,在設計上增添了一些收納的空間,色彩上以藍綠為主色系,點綴黃色,讓整個空間清新富有熱情。
![[裝修案例]82平米三居室美式風格裝修效果圖 清新的小資空間 [裝修案例]82平米三居室美式風格裝修效果圖 清新的小資空間](http://m.lagougou.cn/upload/default/20200811/315eb852bfdc16980da10e736ed1aec8.jpg)
[裝修案例]82平米三居室美式風格裝修效果圖 清新的小資空間![[裝修案例]82平米三居室美式風格裝修效果圖 清新的小資空間 [裝修案例]82平米三居室美式風格裝修效果圖 清新的小資空間](http://m.lagougou.cn/upload/default/20200811/711d3a22461e8ef72f8073bf334a9486.jpg)
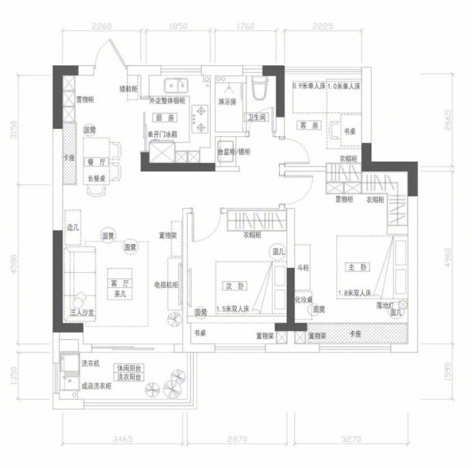
82平米三居室美式風格裝修·戶型圖
![[裝修案例]82平米三居室美式風格裝修效果圖 清新的小資空間 [裝修案例]82平米三居室美式風格裝修效果圖 清新的小資空間](http://m.lagougou.cn/upload/default/20200811/0b76183f854fd2ee4ffc4e2c90d74be4.jpg)
美式風格經典的藍綠色系,搭配黃色點綴空間
![[裝修案例]82平米三居室美式風格裝修效果圖 清新的小資空間 [裝修案例]82平米三居室美式風格裝修效果圖 清新的小資空間](http://m.lagougou.cn/upload/default/20200811/a8085acb4b4afa72be3206e2ae4beac6.jpg)
裝修公司[裝修案例]82平米三居室美式風格裝修效果圖 清新的小資空間
臥室
![[裝修案例]82平米三居室美式風格裝修效果圖 清新的小資空間 [裝修案例]82平米三居室美式風格裝修效果圖 清新的小資空間](http://m.lagougou.cn/upload/default/20200811/48b835f98eb3719c2596512975bae51a.jpg)
用柜體搭建的飄窗,集收納與休閑為一體的
![[裝修案例]82平米三居室美式風格裝修效果圖 清新的小資空間 [裝修案例]82平米三居室美式風格裝修效果圖 清新的小資空間](http://m.lagougou.cn/upload/default/20200811/138cfcc80ca44a07f2dd9f90423297cb.jpg)
![[裝修案例]82平米三居室美式風格裝修效果圖 清新的小資空間 [裝修案例]82平米三居室美式風格裝修效果圖 清新的小資空間](http://m.lagougou.cn/upload/default/20200811/de2d17593464ecdac63bf1d1db1e5ec4.jpg)
廚房
![[裝修案例]82平米三居室美式風格裝修效果圖 清新的小資空間 [裝修案例]82平米三居室美式風格裝修效果圖 清新的小資空間](http://m.lagougou.cn/upload/default/20200811/8ccfd5a274fabbe7503bbfc52b380329.jpg)
![[裝修案例]82平米三居室美式風格裝修效果圖 清新的小資空間 [裝修案例]82平米三居室美式風格裝修效果圖 清新的小資空間](http://m.lagougou.cn/upload/default/20200811/4403e98d729208c7385228e286eeb0eb.jpg)
衛生間干濕分離
以上就是吉誠裝修公司小編為大家分享的關于[裝修案例]82平米三居室美式風格裝修效果圖 清新的小資空間的相關內容介紹。小編推薦閱讀:80平米小戶型北歐風格裝修設計效果圖 粉嫩淡雅的色彩 清新脫俗